您现在的位置是:生活百科网 > 生活百科 >
三室两厅两卫(三室两厅两卫户型图)
2022-05-11 17:30生活百科 人已围观
简介三室两厅两卫最合适的面积应该属于多少平方呢?给你算吧!客厅+餐厅+过道=45-60,低于40平米会显得很拥挤,60平米左右很宽敞,档次很高。主卧室20-25,低于15平米的房子很小,一般在...
三室两厅两卫最合适的面积应该属于多少平方呢?
给你算吧!
客厅+餐厅+过道=45-60,低于40平米会显得很拥挤,60平米左右很宽敞,档次很高。
主卧室20-25,低于15平米的房子很小,一般在15-20平米的很常见;
两个小卧室15+12=27,有些紧凑型的都是12+9,有些甚至更小,肯定不舒适的;
卫生间2个6+5=11;
厨房8平米;
阳台2个6*2=12,减半算6平米。
适合的使用面积就是117-137平米。按公摊15%-20%算,建筑平米是137-171平米。
当然了,很多人家客厅+餐厅没有60平米那么大,主卧室也没25平米那么大,卫生间一大一小,阳台只有一个。那就减少一点,按50+20+15+12+10+8+3=118,再算上20%公摊,大概150建筑平米的三居就不错了,紧凑一点的也要130左右。想达到豪宅的效果,客厅,餐厅,厨房,卫生间,阳台都必须扩大,甚至还要有书房、阳光房的四室五室,那建筑面积要200-250平米才够。其实卫生间不需要做,客餐厅和3个卧室要是面积不多的话,也就4万多!三室两厅两卫的面积最好在120平-140平,这是黄金的比例。如果面积小于100平,房间、客厅、餐厅、卫生间的空间就会越小,这样的房子住起来也会比较不舒服,当然房子面积太大,没装修好就会显得很空旷。
扩展资料
三室两厅两卫最佳房型是什么?
1、方正
方正的房子整体利用率高。如果家里人口本来就多,买的面积又不大的情况下,更加要选择方正的户型。另外,方正的户型会让户主发财,缺角的户型对房主不好。
2、通风
南北通透的房子居住舒适,另外高层(6层以上)全南户型也值得考虑。另外有种户型虽然被开放商称为“南北通透”其实是不算的。所谓的南北通透指的是贯穿客厅南北有窗户,能够保证空气对流。
3、客厅朝南,双卧朝南
三房以上要考虑双卧朝南,不是双卧朝南的就不是好房。不管你是大户型小户型,你的客厅必须朝南,两居室也要考虑最起码1个朝南。
4、阳台位于客厅
客厅没有阳台,在视觉上就会觉得房子很小,其次如果阳台位于卧室,那么房子的隐秘就不能保证了。尤其三室两厅两卫,住的人肯定不会少,没有独立的阳台很不好。阳台的位置,最好客厅、卧室各一个。一般的三房两厅,按照宽敞和舒适度来说,有效的室内面积大概100~120平方左右是比较好的。
三室两厅两卫最合适的面积应该属于多少平方呢?
给你算吧!
客厅+餐厅+过道=45-60,低于40平米会显得很拥挤,60平米左右很宽敞,档次很高。
主卧室20-25,低于15平米的房子很小,一般在15-20平米的很常见;
两个小卧室15+12=27,有些紧凑型的都是12+9,有些甚至更小,肯定不舒适的;
卫生间2个6+5=11;
厨房8平米;
阳台2个6*2=12,减半算6平米。
适合的使用面积就是117-137平米。按公摊15%-20%算,建筑平米是137-171平米。
当然了,很多人家客厅+餐厅没有60平米那么大,主卧室也没25平米那么大,卫生间一大一小,阳台只有一个。那就减少一点,按50+20+15+12+10+8+3=118,再算上20%公摊,大概150建筑平米的三居就不错了,紧凑一点的也要130左右。想达到豪宅的效果,客厅,餐厅,厨房,卫生间,阳台都必须扩大,甚至还要有书房、阳光房的四室五室,那建筑面积要200-250平米才够。其实卫生间不需要做,客餐厅和3个卧室要是面积不多的话,也就4万多!三室两厅两卫的面积最好在120平-140平,这是黄金的比例。如果面积小于100平,房间、客厅、餐厅、卫生间的空间就会越小,这样的房子住起来也会比较不舒服,当然房子面积太大,没装修好就会显得很空旷。
扩展资料
三室两厅两卫最佳房型是什么?
1、方正
方正的房子整体利用率高。如果家里人口本来就多,买的面积又不大的情况下,更加要选择方正的户型。另外,方正的户型会让户主发财,缺角的户型对房主不好。
2、通风
南北通透的房子居住舒适,另外高层(6层以上)全南户型也值得考虑。另外有种户型虽然被开放商称为“南北通透”其实是不算的。所谓的南北通透指的是贯穿客厅南北有窗户,能够保证空气对流。
3、客厅朝南,双卧朝南
三房以上要考虑双卧朝南,不是双卧朝南的就不是好房。不管你是大户型小户型,你的客厅必须朝南,两居室也要考虑最起码1个朝南。
4、阳台位于客厅
客厅没有阳台,在视觉上就会觉得房子很小,其次如果阳台位于卧室,那么房子的隐秘就不能保证了。尤其三室两厅两卫,住的人肯定不会少,没有独立的阳台很不好。阳台的位置,最好客厅、卧室各一个。一般的三房两厅,按照宽敞和舒适度来说,有效的室内面积大概100~120平方左右是比较好的。
什么是品质生活?是拥有一个健康的体魄?还是有一个和睦的家庭?又或是实现财富自由?相信每一个人对品质生活都有不同的理解。而在本案屋主看来,能让自己的精神得到满足,就是品质生活。哪怕是一个人独居,也不能缺少对品质生活的追求及热爱。
因此,在给新家装修设计时,也将自己的气质及理念融入到了空间中。比如全屋以大地色为主基调;比如在布局上将三室改成两室;再比如客餐厨采用一体化设计等等。当然,从完工后的效果来看,也十分温柔、治愈,非常让人羡慕。
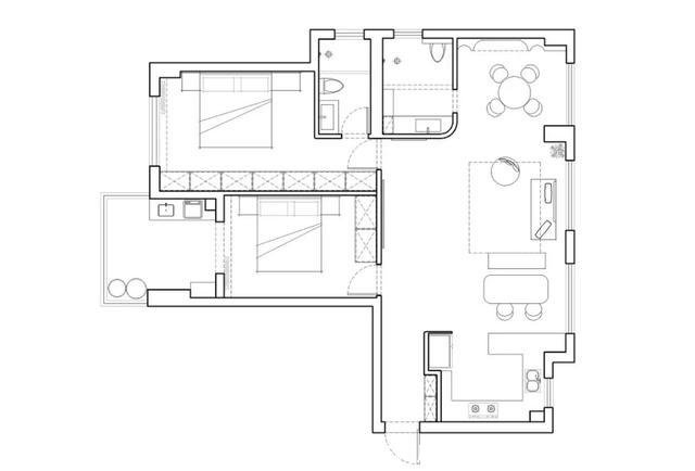
平面结构图
原户型比较常规,但由于屋主是一个人居住,用不到那么多卧室,所以在改造时,也对空间功能进行了重新调整。
平面方案图

空间布局改造如下
1、优化玄关,借用厨房的空间,解决基本的入户收纳需求。
2、厨房采用开放式设计,与客餐厅实现贯通,实现LDK一体化布局。
3、客厅旁边的小房间同样做开放式设计,并以功能间定位,进一步提高空间的通透性。
4、调整次卫门洞位置,避开与入户门正对。
入户

一个人的生活或许有些孤独,但绝不能缺少生活的仪式感。哪怕是一个小小的定制门牌设计,也能彰显出居住者对生活的热爱。Ps:欢喜是屋主宠物的名字。
玄关

大面积的大地色,异形的全身镜,以及藤编地毯配置,一进门就为空间奠定了温柔、治愈的基调,且不失质朴。同时,给墙角做抹圆处理,以及舍弃掉踢脚线,既让入户动线更加流畅了,也做到了简约、干净。Ps:由于墙面刷的是艺术漆,所以是可以不安装踢脚线的。

入户鞋柜是借用厨房空间设计的,柜体中间位置镂空,不仅方便了小物品的收纳,暗藏上灯光后,也点亮了回家的仪式感。而左侧钮扣挂钩及小飞象凳的设计,也让入户的功能性得到了完善,并做到了灵活。

为解决鞋柜的透气问题,只让商家做了一个门框,而中间的藤编则是屋主自己加工的。这样一来,既节省了预算,也强化了空间的自然气息。
客厅

来到客厅,当次卫门洞改到侧面之后,除了避开了与入户门正对的尴尬,安装上一幅尺寸超大的中古风装饰画后,也提高了入户的视觉感。同时,在空间以大面积大地色为主的情况下,还为空间点缀出了一丝艺术气息。当然,墙角做抹圆也与玄关有了呼应。

客厅沙发采用半围合式布局,并舍弃常规的茶几,除了可以让空间更加开阔、灵动之外,也强化了舒适的质感。尤其是将白色的纱帘拉上后,更是营造出了慵懒、惬意的生活姿态。

当厨房采用开放式设计之后,则与客餐厅实现了完全贯通,并将大横厅本身具有优势,给展现得淋漓尽致。当然,在家里来客之后,也方便了日常的交流、互动。
餐厅

餐厅位于客厨区之间,巧妙起到了连接空间的作用,让生活动线更加人性化。同时,刻意选择圆角餐桌,以及搭配上藤编材质的长凳,也在强调圆润、质朴气息的情况下,与玄关区做到了呼应。

功能间

由于屋主用不到那么多间卧室,将客厅旁边的小房间打开,并以功能间来定位,这样既进一步拓展了客餐厅的通透性,也满足了不同的使用需求。比如阅读、放空、工作,或者与三俩好友聊天喝茶,都十分惬意。

厨房

当厨房打开之后,除了空间更加宽敞了之外,空间利用率也得到了提高。比如U形橱柜搭配上一字型的吧台,就充分保证了日常的收纳、操作需求。橱柜搭配上墨绿色的门板,也在温柔中彰显出了一丝复古的基调。

为了让空间更加整体、统一,厨房选择了仿木地板瓷砖,并同样采用人字形铺贴,从而让视觉过渡十分自然、流畅。
主卧室

主卧延续了外面的基调,再搭配上低饱和度的床品,不仅升华了空间品质感,也营造出了一个温柔、舒适的睡眠环境。而衣柜则是以内嵌的方式,设计在了床尾处,收纳能力十分强大,完全不输衣帽间。

次卧室

次卧是为父母预留的房间,由于使用率比较低,所以家具配置以简洁为主。当然,整面墙的衣柜配置,也不会造成隐形浪费的情况。

卫生间

次卫由于面积比较大,就做了干湿分离的设计。同时,给干区设计一体盆,以及整面墙的收纳柜,也在简约中做到了实用。而主卫则以常规化为主,不过入墙式水龙头及花洒设计,也彰显出了一丝精致感。


其实品质生活人人都向往,但在我看来,即便没有一个高品质的居住空间,只要能做到健康、自律的生活方式,也是很有品质的。当然,本案也有很多值得我们来借鉴的地方,比如墙顶一体化的色彩定位;比如LDK一体化的布局等,都是相当不错的。
图源:MOON
上一篇:正约数(正约数是什么意思)
相关文章
- 2023北京本科普通批985院校投档线:清华685、北大683、武大653分
- 广东考生上华南理工大学难吗?
- 上海这3所大学2023考研复试分数线公布
- 最大相差178分!南京理工大学投档线集锦!最高681分,最低503分
- 2023湖北物理类投档线:武科大573、湖大563、江大536、武体506分
- 多少分能上南大?2023南京大学在苏录取数据盘点,这些途径可以走
- 2023山东高考,省内分数线最高的十所大学
- 国防科技大学录取分数线是多少?附国防科技大学毕业去向
- 郑州大学多少分能考上?2024才可以录取?附最低分数线
- 北京航空航天大学2023年录取分数线及省排名
- 哈尔滨工业大学(威海)、(深圳)校区2023年录取分数情况
- 2023广东本科投档线出炉!请看中大/华工/深大/华师/暨大等分数线
随机图文
微信dat文件用什么软件打开(电脑微信dat文件用什么软件打开)
微信dat文件用什么软件打开经常用电脑登陆微信的应该都有一个体会,那就是太...
特斯拉官宣:Model 3焕新版国内正式开启交付!25.99万元起售,马斯克:特斯拉将坚持继续降价
据特斯拉(TSLA,股价212.42美元,市值6752.7亿美元)官方微博,10月26日,特斯拉...
苦情爱情电视剧大全(台湾苦情戏电视剧大全)
hello,大家好!今天的你们都开心了吗?今天要和大家一起聊聊韩国的十大悲剧...
最新!2022年12月四六级答案出炉!这次你能过吗?
终于考完了,同学们快来对答案! 2022年12月四级考试结束,参考答案,供大家...
流金砾石(流金砾石是什么意思)
流金砾石是什么意思“流金砾石”即为“流金铄石”,意思是:指能使金石熔化...
成品油价格再迎小幅上调 加满一箱50升92号汽油将多花6元
7月12日24时,国内成品油价格再次迎来小幅上调。据国家发改委网站披露,国内...
比焊接强8倍的胶水(比焊接强8倍的胶水不怕油)
提到胶水你会想到什么,我会想到520胶水,就是那个用一下有可能就会把手指粘...
快手置顶怎么设置(快手置顶怎么设置不了)
快手置顶怎么设置快手发现页置顶,数亿观众喊你“参加”大阅兵今晨8点,快...